~吉祥寺へのアクセス良好~
閑静な住宅街に建つ
ハイクオリティ省エネ住宅
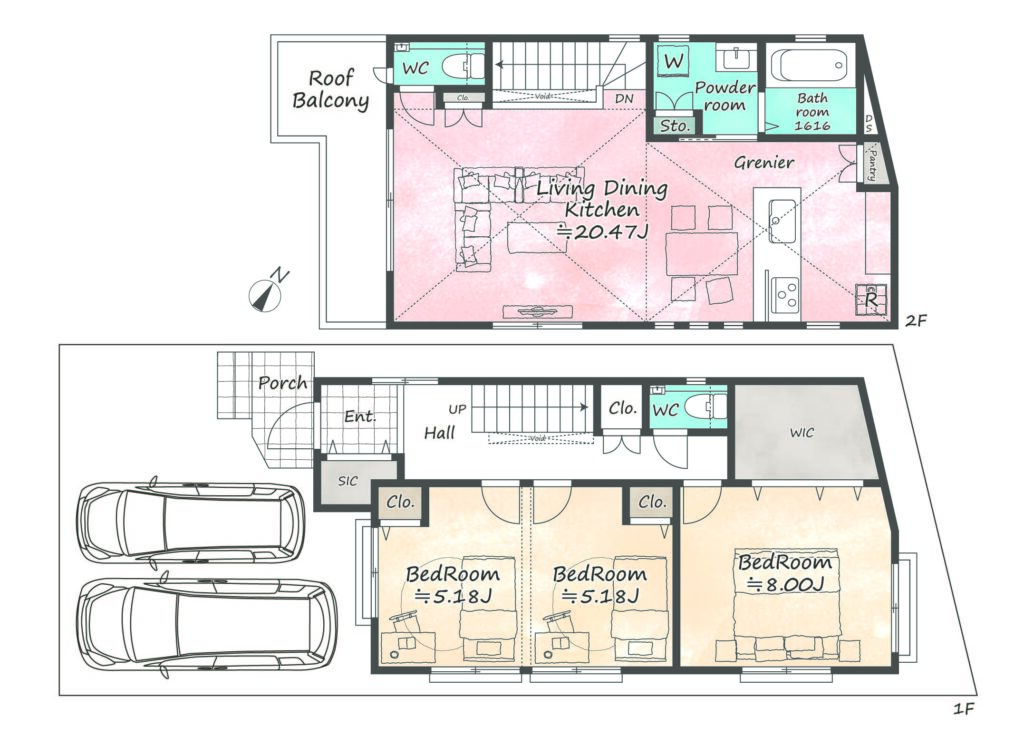
◆スケルトン階段とロフトが織りなす大空間LDK
◆シューズクローゼット、WIC、パントリー、リネン庫等豊富な収納
◆カースペースは並列台可能(車種による)
◆安心の耐震等級3
◆タイル張り床(LDK・玄関・洗面脱衣所)
◆ハイドアなど、ワンランク上の内装デザインが採用
西武新宿線 急行停車駅「上石神井」駅 徒歩13分♪
都心へのアクセス良好で通勤通学にも便利です。
建物完成済みの為いつでもご内見可能です。
詳細はお気軽にお問合せ下さい。
買いたい > 物件詳細
杉並区善福寺4丁目
新築分譲住宅 全1棟
- 価格
- 1億980万円
- 新築戸建
- 間取
- 3LDK
- 所在地
- 東京都杉並区善福寺4丁目
- 交通
- 西武新宿線 上石神井駅 徒歩13分
西武新宿線 上井草駅 徒歩20分
JR中央線「西荻窪」歩29分
- 築年月
- 2025年09月
- 新築/中古
- 新築・未入居
- 面積
- 97.07m²
- 建物階数
- 地上2階
- 総戸/区画数
- 全1棟
- 建物構造
- 木造
- 間取内容
- 3LDK
- 駐車場
- カースペース
- 現況
- 空家
- 用途地域
- 第一種低層住居専用地域
- 土地面積
- 97.79m²
- 土地権利
- 所有権
- 接道状況
- 一方
- 接道方向1
- 西
- 接道間口1
- 接道種別1
- 公道
- 接道幅員1
- 4 m
- 上水道
- 公営水道
- 下水道
- 本下水
- ガス・オール電化
- 都市ガス
- 車庫
- 周辺環境
- 杉並区立桃井第四小学校:徒歩7分 杉並区立井草中学校:徒歩16分
いなげや練馬上石神井南店:徒歩6分 西友上石神井店:徒歩13分 ミニストップ関町南2丁目店 Olympic関町店:徒歩5分 コジマ×ビックカメラ善福寺店:徒歩10分 杉並元氣保育園:徒歩6分 サミットストア善福寺店:徒歩10分 セブンイレブン練馬関町南2丁目店:徒歩3分 ウェルパーク練馬上石神井南店:徒歩8分 C’z PRO練馬関町店:徒歩7分 八幡幼稚園:徒歩9分
- 制限事項
- 景観法高度地区防火地域準防火地域
- 物件番号
- 3910
- 取引態様
- 一般
- 特記事項
- 1種低層、近隣商業 建ペい率:40%・80%、容積率:80%・300%
株式会社 アラモード 練馬店
0800-800-5308
営業時間:9:30 〜 20:00
定休日:毎週水曜日、隔週火曜日














































































































































