買いたい > 物件詳細

外観
現地写真
現地写真
現地写真
現地写真
現地写真
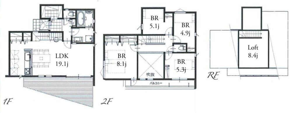
間取り図
区画図
武蔵野市立第四小学校:徒歩8分
武蔵野市立第四中学校:徒歩12分
北町保育園:徒歩6分

new

武蔵野市吉祥寺北町2丁目
新築分譲住宅 全2棟 A号棟

価格
11,980万円
新築戸建
間取
4LDK

安心の長期優良住宅♪
LDK19帖以上・4LDK☆
モデルハウスご案内中!

最寄り駅の【吉祥寺】駅は
お店の数も多く賑わいのある人気の街!

JR中央線・京王井の頭線【吉祥寺】駅の2路線利用可能♪
都心へのアクセス良好、通勤通学にも便利です♪

【安心した設備・仕様】
・LD床暖房付き
・システムキッチン食洗機・浄水器付
・浴室換気乾燥機付き

土地・建物総額が明確になっているので、
資金計画が立てやすく安心です♪

スタッフ一同心を込めてご案内いたします。
お気軽にお問合せください!

所在地
東京都武蔵野市吉祥寺北町2丁目  
交通
JR中央線 吉祥寺駅
バス(立野町 乗4分 停歩8分)
西武新宿線 武蔵関駅 徒歩24分
JR中央線「吉祥寺」歩24分
築年月
2026年01月
新築/中古
新築・未入居
面積
99.87m²
計測方式
向き
建物階数
地上2階 
部屋階数
部屋/区画番号
A号棟
総戸/区画数
全2棟
建物構造
木造
間取内容
駐車場
カースペース
建築確認番号
第AI建築確認00‐2500432号他 会社情報
引渡時期
期日指定 2026年02月
現況
未完成
用途地域
第一種低層住居専用
土地面積
122.53m²
建ぺい率
40%
容積率
80%
土地権利
所有権
接道状況
角地
接道方向1
南東
接道間口1
接道種別1
公道
接道幅員1
9 m
接道方向2
北西
接道間口2
接道種別2
公道
接道幅員2
4 m
上水道
公営水道
下水道
本下水
ガス・オール電化
都市ガス
車庫
周辺環境
武蔵野市立第四小学校:徒歩8分 武蔵野市立第四中学校:徒歩12分
コープ関町店:徒歩10分 ファミリーマート吉祥寺八幡通り店:徒歩7分 まいばすけっと吉祥寺東町店:徒歩10分 くすりのダイイチ薬局吉祥寺通り 店:徒歩10分 北町保育園:徒歩6分 医療法人社団じうんどう慈雲堂病院:徒歩13分 私立成蹊小学校:徒歩6分 私立成蹊中学校:徒歩10分 立野公園:徒歩5分  
制限事項
景観法高度地区
特徴・設備・条件
長期優良住宅認定通知書 地盤調査済 前道6m以上 角地 2沿線以上利用可 角住戸 2階建 陽当り良好 LDK18畳以上 ロフト 吹抜け 全居室フローリング 床暖房 全居室収納 床下収納 シューズインクローク システムキッチン 対面式キッチン パントリー(食器・食品の収納庫) 食器洗乾燥機 浄水器 浴室乾燥機 浴室1坪以上 浴室に窓 シャワー付洗面化粧台 トイレ2ヶ所 温水洗浄便座 ワイドバルコニー 南面バルコニー ウッドデッキ 省エネルギー対策 高気密高断熱住宅 省エネ給湯器 全居室複層ガラスか複層サッシ 駐車2台可 TVモニタ付インターホン スーパー 徒歩10分以内 小学校 徒歩10分以内 年度内入居可 都市ガス
スマートキー
物件番号
3739
掲載期限日
-
取引態様
一般
※物件掲載内容と現況に相違がある場合は現況を優先と致します。

お問い合わせ

株式会社 アラモード 杉並店
0120-775-377
営業時間:9:3020:00

定休日:毎週水曜日、隔週火曜日

資料請求・お問い合わせ