買いたい > 物件詳細

現地写真
区画図
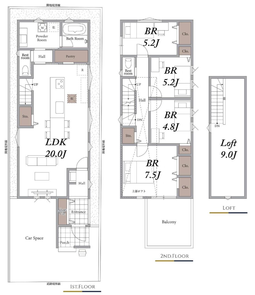
参考プラン
現地写真
現地写真
前面道路写真
前面道路写真
練馬区立谷原小学校
練馬区立石神井東中学校

ALAMODO Specialty
up

練馬区高野台
建築条件付売地 全3区画3区画

価格
7,480万円
土地参考プラン建物価格総額9,480万円
建築条件付売地

◇南側道路約4m!陽当り・開放感◎
◇西武池袋線【石神井公園】駅
◇大型4LDK・LDK20帖の参考プランあり!
◇【練馬高野台】駅も徒歩10分圏内

パントリーなど
収納が充実した
4室+LDK+固定階段ロフト約9帖付き!

≪充実した建築条件付の設備・仕様≫
◆ハイブリット給湯器【ECO ONE】~家計に優しい~
◆洗面室 家事の味方【乾太くん】搭載♪
◆システムキッチン パナソニックラクシーナ
 食洗機・浄水器付
◆洗面室:乾太くん標準装備!
◆リビング ガス式床暖房2マット!

所在地
東京都練馬区高野台  
交通
西武池袋線 石神井公園駅 徒歩13分 
西武池袋線 練馬高野台駅 徒歩9分 
地目
宅地
用途地域
第一種低層住居専用地域
都市計画
市街化区域
地勢
平坦
土地面積
102.41m²
建築条件
建築条件付き
【建築プラン】 建物価格 2000万円  建物面積 104.89m²
建ぺい率
50%
容積率
100%
土地権利
所有権
接道状況
一方
接道方向1
接道間口1
接道種別1
接道幅員1
4 m
上水道
公営水道
下水道
本下水
ガス・オール電化
都市ガス
車庫
制限事項
景観法高度地区準防火地域高さ最低限度有建物面積最低限度有
物件番号
練馬店3915
取引態様
一般
特記事項
この土地は、土地売買契約後3ヵ月以内に売主会社と建物の建築請負契約を締結することを条件に販売します。この期間内に建築請負契約を締結されなかった場合は、土地売買契約は白紙となり、受領した手付金等の土地代金は全てお返しします。
※物件掲載内容と現況に相違がある場合は現況を優先と致します。

株式会社 アラモード 練馬店
0800-800-5308
営業時間:9:3020:00
定休日:毎週水曜日、隔週火曜日