☆新着情報☆
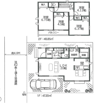
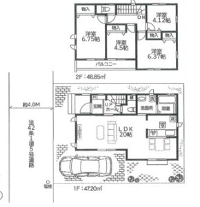
・大型4LDK
庭付(南側)・LDK20帖・
~物件企画~
・土地面積 108.07m2(約32.69坪)
・建物面積 96.05m2(約29.05坪)
・間取り 4LDK
~建物構造~
・ZEH水準省エネ住宅
・耐震等級含む全6項目で最高等級 取得!
※ 設計&建設住宅性能評価書 取得予定
・フラット35S適用物件
※ 当初5年間 0.5%の金利優遇が利用可能
~建物仕様~
・食器洗浄乾燥機
・床埋込式 ガスカラン
・LOW-E 複層ガラス
・床下収納
・浴室乾燥機など
物件詳細・資金計画提案・ご案内などお気軽にお問合せください♪
※ アラモード練馬店 0800-800-5308 ※
























































































































